Studio Design
2022.
Interior Design. Rendering. Case Study. Remote Guidance.
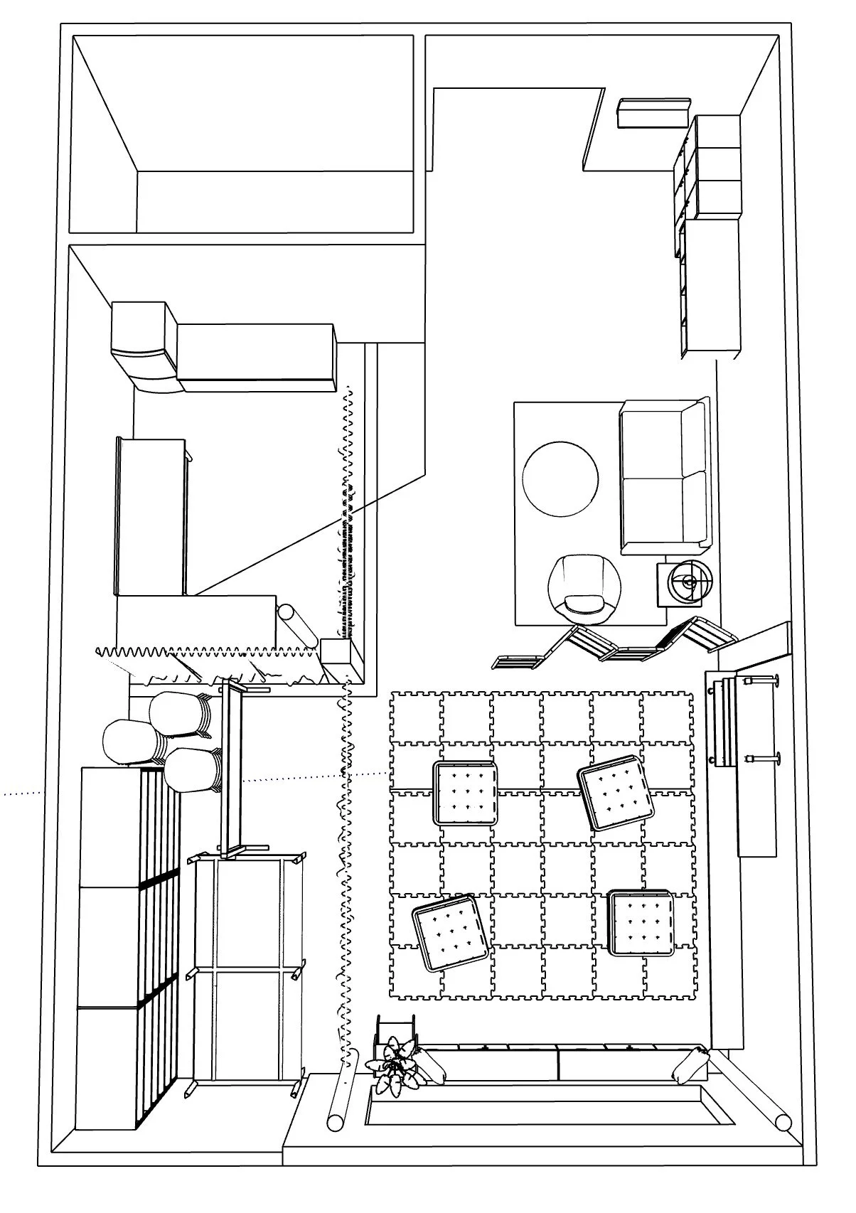
Objective: Design a multifunctional studio space for Activism Studio to fit the diverse needs of their organization using exclusively second-hand materials and furniture.
This design needed to be modular enough to accommodate co-learning and ideating, room for project builds, and the ability to transform the room into an event space.
BEFORE:




THE PROCESS:
Measure 2. Interview 3. Design
Since I was nowhere near the studio, I had the clients send me pictures and measurements of the space. I conducted interviews to understand the their needs, and then presented a design. We had a few rounds of feedback and revisions before landing on this:
Co-Learn
Event
4. Scavenge!
We were working with a pretty tight budget. We knew we had to scour Facebook Marketplace, second-hand stores, and local Buy Nothing groups to find the pieces we needed. So I came up with a list of furniture and the ideal dimensions, and we went to town!
THE RESULT:






